Mẫu nhà vườn 2 tầng đơn giản là lựa chọn lý tưởng cho những gia đình muốn một không gian sống thoáng đãng, hiện đại và tiết kiệm chi phí. Cùng khám phá mẫu nhà vườn 2 tầng đẹp với bản vẽ mặt bằng, chi phí xây dựng dễ dàng ứng dụng.
1. Mẫu Nhà Vườn 2 Tầng Đơn Giản Đẹp, tối ưu chi phí
Mẫu nhà vườn 2 tầng đơn giản là những thiết kế ưu tiên sự tối giản, không gian xanh và công năng khoa học, phù hợp cho gia đình 3–6 người. Những kiểu nhà vườn 2 tầng này mang đến không gian sống thoáng đãng, chi phí hợp lý, đồng thời vẫn đáp ứng tính thẩm mỹ hiện đại.
Dưới đây là những mẫu nhà vườn 2 tầng đẹp, được ưa chuộng:
1.1 Mẫu nhà vườn 2 tầng phong cách hiện đại
Mẫu nhà vườn 2 tầng phong cách hiện đại tập trung vào đường nét thẳng, hình khối mạnh mẽ và tone màu trung tính. Thiết kế này chú trọng tổng thể ngôi nhà tinh gọn, sang trọng và dễ thi công.
Ứng dụng thực tế:
- Phù hợp với diện tích đất từ 120–200m².
- Thiết kế mở với cửa kính lớn giúp không gian sáng và kết nối với thiên nhiên.

1.2 Mẫu nhà 2 tầng mái Thái tối giản
Nhà 2 tầng mái Thái tối giản phù hợp với gia đình thích vẻ đẹp thanh thoát, chống nóng tốt và tạo độ cao thoáng cho ngôi nhà. Đây là mẫu được chọn nhiều ở nông thôn và ngoại ô.
Ưu điểm nổi bật:
- Hệ mái dốc thoát nước nhanh, bền và đẹp.
- Dễ tạo cảm giác sang trọng dù thiết kế đơn giản.
- Hợp phong thủy, chống nóng tốt cho khí hậu Việt Nam.

1.3 Mẫu nhà vườn 2 tầng mái Nhật
Mẫu nhà vườn 2 tầng mái Nhật là lựa chọn lý tưởng cho những ai thích nét tinh tế, nhẹ nhàng, cân bằng giữa hiện đại và truyền thống. Đặc điểm là mái dốc nhẹ, thanh thoát.
Giải pháp thiết kế:
- Sử dụng mái ngói màu ghi hoặc xanh navy để tạo cảm giác hiện đại.
- Kết hợp bồn cây quanh hiên nhà tăng cảm giác thư giãn.

1.4 Mẫu nhà vườn chữ L
Mẫu nhà vườn 2 tầng chữ L phù hợp các khu đất rộng ngang hoặc đất thoáng 2 mặt, tạo khoảng sân trước hoặc bên hông để đậu xe hoặc làm sân vườn.
Ứng dụng thực tế:
- Tách rõ các khu vực chức năng trong nhà.
- Tạo khoảng sân rộng rãi cho trẻ chơi hoặc làm tiểu cảnh.
- Cửa chính – cửa phụ bố trí linh hoạt theo hướng đất.

>>> Tậu ngay Sân vườn bên hông nhà đẹp, độc đáo, xu hướng 2026
1.5 Mẫu nhà vườn 2 tầng có gara ô tô
Mẫu nhà vườn 2 tầng có gara ô tô giải quyết nhu cầu đậu xe an toàn, tiện lợi cho gia đình có phương tiện riêng.
Ưu điểm:
- Gara đặt bên hông hoặc tầng 1 giúp tiết kiệm diện tích.
- Bố trí lối đi riêng từ gara vào nhà giúp thuận tiện khi trời mưa.
Ứng dụng: Để gara không bí, nên thiết kế thêm khe thoáng hoặc cửa sổ ngang để lưu thông không khí.

>>> 8 Mẫu thiết kế sân vườn nhỏ sau nhà đẹp như resort tại gia 2026
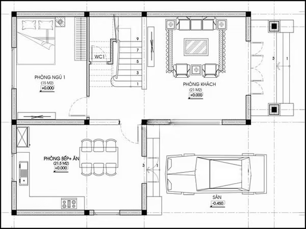
2. Tham khảo bản vẽ mặt bằng nhà vườn có 2 tầng
Bản vẽ mặt bằng nhà vườn 2 tầng giúp gia chủ hình dung rõ công năng và cách bố trí không gian thực tế, từ đó tối ưu diện tích sử dụng và chi phí thi công.


3. Kinh nghiệm thiết kế nhà vườn hiện đại
3.1 Phong cách thiết kế nhà vườn
Phong cách thiết kế nhà vườn 2 tầng hiện đại thường dựa vào sự tối giản và sự hòa hợp với thiên nhiên.
Gợi ý phong cách cho gia chủ”
- Phong cách hiện đại: tập trung vào các thiết kế khối vuông, cửa kính lớn.
- Mái Nhật: ưu tiên sự thanh lịch, nhẹ nhàng.
- Phong cách Rustic: phù hợp vùng nông thôn với gỗ và đá.
Giải pháp:
Gia chủ nên xác định phong cách ngay từ đầu để chọn vật liệu, màu sắc và chi phí thi công phù hợp.

3.2 Vật liệu thi công bền đẹp
Vật liệu thi công bền đẹp giúp mẫu nhà vườn 2 tầng đơn giản giữ được độ bền và thẩm mỹ lâu dài.
Gia chủ nên cân nhắc lựa chọn các loại vật liệu thích hợp cho từng khu vực dưới đây:
- Kính cường lực: lấy sáng tốt.
- Gạch men ốp ngoài trời chống thấm.
- Sơn nước cao cấp chống rêu mốc.
- Gỗ nhựa ngoài trời làm ban công, lối đi vườn.

3.3 Ánh sáng và sân vườn nhà phố
Ánh sáng tự nhiên và sân vườn là yếu tố quan trọng nhất khi thiết kế nhà vườn 2 tầng đẹp và hiện đại.
Giải pháp tối ưu:
- Dùng cửa kính rộng ở phòng khách, phòng ngủ.
- Thiết kế tiểu cảnh ở giếng trời để lấy sáng cho khu giữa nhà.
- Sử dụng đèn LED âm trần để tạo cảm giác không gian rộng hơn.
4. Chi phí xây dựng nhà vườn 2 tầng là bao nhiêu?
Hiện nay trên thị trường chi phí xây dựng nhà vườn 2 tầng dao động từ 900 triệu đến 1,5 tỷ, tùy phong cách (mái Thái, mái Nhật, hiện đại) và vật liệu sử dụng.
Chi phí theo từng hạng mục:
- Phần thô: 6 – 8 triệu/m²
- Hoàn thiện: 8 – 12 triệu/m²
- Mái Thái, mái Nhật có thể tăng thêm 70–150 triệu.
Các yếu tố ảnh hưởng chi phí:
- Diện tích đất
- Phong cách thiết kế (biệt thự nhà vườn 2 tầng thường cao hơn)
- Mức độ hoàn thiện nội thất
- Vật liệu (gỗ, kính, đá…)

Hãy để lại lời nhắn
5. Đơn vị chuyên thi công nhà phố trọn gói – giá tốt
Đơn vị thi công nhà vườn 2 tầng uy tín sẽ giúp bạn tối ưu chi phí, đảm bảo tiến độ và chất lượng công trình.
Hiện nay, Nội thất An Tín là một trong những địa chỉ thiết kế thi công nội thất chuyên nghiệp nhất, được đông đảo khách hàng tin tưởng vì những ưu điểm vượt trội như:
- Sở hữu đội ngũ kiến trúc sư ít nhất 7 năm kinh nghiệm, am hiểu nhiều phong cách thiết kế và cách vận dụng yếu tố phong thủy vào thiết kế nhà ở
- Hoàn thiện hơn 900 công trình ở 39 tỉnh thành trên toàn quốc
- Mỗi dự án là một bản thiết kế riêng theo nhu cầu của khách hàng
- Đảm bảo chất lượng, tiến độ công trình bằng văn bản
- Cam kết không phát sinh chi phí ngoài hợp đồng
- Chế độ bảo hành dài hạn.
Hãy để lại lời nhắn
Tùy vào nhu cầu, ngân sách của gia chủ, đội ngũ kiến trúc sư của An Tín sẽ đề xuất phương án thiết kế thi công nội thất TỐI ƯU nhất. Liên hệ trực tiếp với Nội thất An Tín để có bản báo giá chính xác nhất:
- Hotline: 0909 658 985
- Website: www.noithatantin.com
>>> THÔNG TIN HỮU ÍCH KHÁC:
- Gạch Lát Sân Vườn: Báo Giá, 20+ Mẫu Đẹp & Cách Chọn
- 5 Phong cách Thiết Kế Biệt Thự Nhà Vườn | Báo Giá Hoàn Thiện
- Hồ Nước Tiểu Cảnh Đẹp: 10+ Mẫu Xu Hướng [Báo Giá Thi Công]


Bài viết mới nhất
Vườn Trên Sân Thượng: điểm nhấn xanh – sạch – đẹp
Vườn trên sân thượng là giải pháp giúp tận dụng diện tích trống để tạo [...]
Thiết Kế Hồ Cá Koi Ngoài Trời hiện đại, Chuẩn Kỹ Thuật 2026
Thiết kế hồ cá koi ngoài trời năm 2026 ưu tiên sự kết hợp giữa [...]
Sân Vườn Kiểu Nhật: 4 lối thiết kế và tiêu chuẩn thi công
Sân vườn kiểu Nhật là không gian Zen tối giản, tập trung vào 4 loại [...]
8 Mẫu thiết kế sân vườn nhỏ sau nhà đẹp như resort tại gia 2026
Thiết kế sân vườn nhỏ sau nhà là giải pháp kiến trúc xanh giúp tối [...]
Tậu ngay Sân vườn bên hông nhà đẹp, độc đáo, xu hướng 2026
Sân vườn bên hông nhà ưu diện tích, tạo bộ lọc không khí tự nhiên [...]
Thiết kế Quán cà phê Phong Cách Địa Trung Hải đẹp, tiết kiệm
Thiết kế Quán cà phê Phong Cách Địa Trung Hải mang lại không gian thoáng [...]
TOP 10 Mẫu Hòn Non Bộ Dưới Cầu Thang Đẹp, Thịnh Hành
Hòn non bộ dưới cầu thang là giải pháp tận dụng không gian trống để [...]
Gỗ HDF Là Gì? Đặc Điểm, So Sánh MDF và Báo Giá
Gỗ HDF là dòng gỗ công nghiệp có mật độ nén cao, độ cứng tốt [...]