Thiết kế nhà cấp 4 60m2 2 phòng ngủ là lựa chọn lý tưởng cho những gia đình trẻ hoặc những ai muốn sở hữu một không gian sống tiện nghi, chi phí hợp lý mà vẫn đảm bảo thẩm mỹ. Trong bài viết này, An Tín giới thiệu các mẫu nhà cấp 4 60m2 2 phòng ngủ đẹp, kèm bản vẽ chi tiết, gợi ý phối màu sơn và dự toán chi phí thi công thực tế để bạn dễ dàng lên kế hoạch xây dựng tổ ấm của mình.
1. Tổng hợp mẫu nhà cấp 4 60m2 2 phòng ngủ đẹp
1.1 Mẫu nhà cấp 4 60m2 2 phòng ngủ mái thái hiện đại
Mẫu nhà cấp 4 mái thái với diện tích 60m2 và 2 phòng ngủ mang đến không gian sống vừa hiện đại vừa sang trọng. Mái thái giúp ngôi nhà trông rộng rãi và mát mẻ hơn, đặc biệt phù hợp với khí hậu nhiệt đới.
Giải pháp thiết kế phù hợp:
- Sử dụng mái thái để tạo độ dốc, giúp thoát nước tốt hơn.
- Bố trí các cửa sổ lớn để tận dụng ánh sáng tự nhiên, kết hợp với không gian mở giúp phòng khách và phòng bếp thoáng đãng.
- Chọn màu sắc tươi sáng như trắng, xám hoặc be cho tường để làm nổi bật thiết kế mái thái.


1.2 Mẫu nhà cấp 4 60m2 2 phòng ngủ 1 phòng thờ
Mẫu nhà cấp 4 60m2 có 2 phòng ngủ và 1 phòng thờ là lựa chọn phù hợp với gia đình có nhu cầu thờ cúng nhưng vẫn muốn tối ưu hóa diện tích. Việc bố trí phòng thờ hợp lý trong ngôi nhà không chỉ đảm bảo tính thẩm mỹ mà còn đáp ứng yêu cầu phong thủy.
Với giải pháp này gia chủ có thể:
- Bố trí 2 phòng ngủ ở phía đối diện để tạo không gian riêng biệt cho các thành viên trong gia đình.
- Phòng thờ nên đặt ở vị trí yên tĩnh, tránh gần cửa chính hay nhà vệ sinh.
- Các cửa sổ có thể mở ra khu vực sân vườn để không gian sống thoáng đãng.


1.3 Mẫu nhà cấp 4 có 2 phòng ngủ phong cách tối giản
Phong cách tối giản đang ngày càng trở nên phổ biến trong thiết kế nhà ở hiện đại. Mẫu nhà cấp 4 60m2 với 2 phòng ngủ theo phong cách tối giản mang lại không gian sống gọn gàng, ngăn nắp và dễ dàng duy trì.
Giải pháp thiết kế mà gia chủ có thể tham khảo:
- Chọn nội thất đơn giản, sử dụng ít đồ đạc để không gian thoáng đãng hơn.
- Tường và sàn nhà có màu sáng như trắng hoặc xám, tạo sự sạch sẽ và dễ chịu.
- Tối ưu hóa không gian lưu trữ với các kệ tủ âm tường để tiết kiệm diện tích.


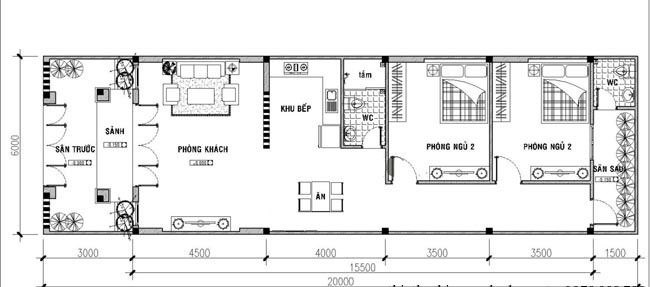
2. Top 4 bản vẽ nhà cấp 4 60m2 với 2 phòng ngủ [Tham khảo]
Dưới đây là 4 mẫu bản vẽ nhà cấp 4 60m2 với 2 phòng ngủ, giúp bạn dễ dàng hình dung và lựa chọn mẫu thiết kế phù hợp với nhu cầu sử dụng.
2.1 Bản vẽ nhà cấp 4 60m2 phòng khách mở
Bản vẽ nhà cấp 4 60m2 với phòng khách mở tạo không gian thoáng đãng, kết nối phòng khách với bếp và phòng ăn. Thiết kế này phù hợp cho những gia đình yêu thích sự giao tiếp và quây quần.
- Kết nối không gian phòng khách, bếp và phòng ăn qua một khu vực trung tâm rộng mở.
- Sử dụng các bức tường kính hoặc cửa lớn để tận dụng ánh sáng tự nhiên và tạo cảm giác không gian rộng rãi.

2.2 Bản vẽ nhà 60m2 2 phòng ngủ không gian xanh
Mẫu nhà cấp 4 60m2 2 phòng ngủ với không gian xanh sẽ tạo ra một không gian sống gần gũi với thiên nhiên, giúp gia đình bạn thư giãn và cải thiện chất lượng sống.
- Tạo không gian xanh bằng cách trồng cây xanh trong và ngoài nhà, giúp không gian thêm phần sinh động.
- Tận dụng ánh sáng tự nhiên và không gian mở để không khí luôn trong lành.

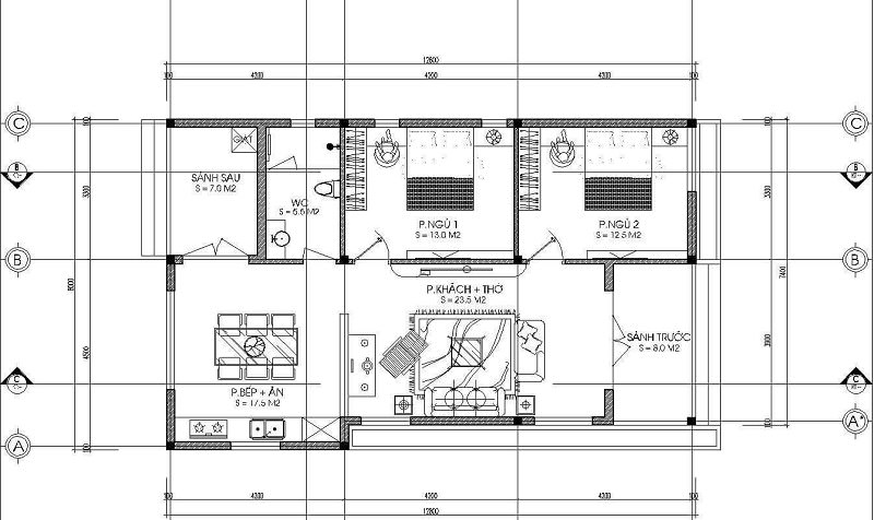
2.3 Mẫu bản vẽ nhà cấp 4 2 phòng ngủ có phòng thờ
Mẫu bản vẽ này bao gồm 2 phòng ngủ và 1 phòng thờ, phù hợp với gia đình có nhu cầu thờ cúng tổ tiên nhưng không muốn chiếm quá nhiều diện tích.

2.4 Bản vẽ nhà cấp 4 2 phòng ngủ tối ưu không gian
Bản vẽ này giúp tối ưu hóa diện tích sử dụng trong nhà cấp 4 60m2, tạo không gian rộng rãi, thoải mái cho các hoạt động sinh hoạt hằng ngày.

3. Gợi ý phối màu sơn cho nhà cấp 4 60m2 2 phòng ngủ
Phối màu sơn cho nhà cấp 4 60m2 với 2 phòng ngủ đóng vai trò quan trọng trong việc tạo không gian sống hài hòa, rộng rãi và hợp phong thủy. Dưới đây là một số gợi ý để gia chủ lựa chọn.
- Màu sáng cho phòng khách: Sử dụng màu trắng hoặc xám nhạt để làm nổi bật không gian.
- Màu tường phòng ngủ: Tông màu nhẹ nhàng như xanh nhạt, vàng kem hoặc be sẽ tạo cảm giác thư giãn cho gia chủ với không gian phòng ngủ riêng tư
- Màu sắc cho phòng thờ: Nên chọn màu vàng hoặc nâu gỗ để tạo sự ấm cúng và trang nghiêm.

4. Thi công nhà cấp 4 60m2 hết bao nhiêu?
Chi phí thi công nhà cấp 4 60m2 với 2 phòng ngủ sẽ phụ thuộc vào nhiều yếu tố như vật liệu, thiết kế và địa phương thi công. Tuy nhiên, bạn có thể tham khảo mức chi phí trung bình để lập dự toán cho dự án của mình.
Để tính toán chi phí xây dựng nhà cấp 4 60m2, bạn có thể áp dụng công thức sau:
CÔNG THỨC TÍNH CHI PHÍ THIẾT KẾ NỘI THẤT
Trên thị trường hiện nay, chi phí thi công nhà cấp 4 60m2 với 2 phòng ngủ dao động từ 350 triệu – 500 triệu đồng, bao gồm cả xây thô và hoàn thiện nội thất cơ bản.
THIẾT KẾ THI CÔNG HOÀN THIỆN NỘI THẤT CHỈ TỪ 8.000.000Đ/M2
Để tạo nên một không gian sinh hoạt tiện nghi cho nhà cấp 4 60m2 2 phòng ngủ, gia chủ nên sử dụng dịch vụ thiết kế, thi công nội thất trọn gói của các đơn vị uy tín. Điển hình là Nội thất An Tín – công ty thiết kế, thi công nội thất được tin cậy hàng đầu với hơn 13 năm kinh nghiệm.
Nội thất An Tín là đơn vị thi công nội thất chung cư nhà phố uy tín, bảo đảm thẩm mỹ – độ bền – công năng. Cam kết từ An Tín:
- Tư vấn thiết kế miễn phí theo mặt bằng thực tế
- Bảo hành trọn gói, hỗ trợ sửa chữa trọn đời
- Đội ngũ thi công chuyên nghiệp, đúng tiến độ
Nếu bạn đang tìm một đơn vị thi công uy tín, Nội thất An Tín sẵn sàng đồng hành cùng bạn trong mọi thiết kế nội thất phòng ngủ. Liên hệ với chúng tôi thông qua:
- Hotline: 0909 658 985
- Website: www.noithatantin.com
>>> THÔNG TIN HỮU ÍCH KHÁC:
- Mẫu nhà 40m2 2 phòng ngủ: Ưu điểm và cách thiết kế tối ưu
- Thiết Kế Biệt Thự Nhà Vườn Chữ U Đẹp – Phong Thủy


Bài viết mới nhất
Vườn Trên Sân Thượng: điểm nhấn xanh – sạch – đẹp
Vườn trên sân thượng là giải pháp giúp tận dụng diện tích trống để tạo [...]
Thiết Kế Hồ Cá Koi Ngoài Trời hiện đại, Chuẩn Kỹ Thuật 2026
Thiết kế hồ cá koi ngoài trời năm 2026 ưu tiên sự kết hợp giữa [...]
Sân Vườn Kiểu Nhật: 4 lối thiết kế và tiêu chuẩn thi công
Sân vườn kiểu Nhật là không gian Zen tối giản, tập trung vào 4 loại [...]
8 Mẫu thiết kế sân vườn nhỏ sau nhà đẹp như resort tại gia 2026
Thiết kế sân vườn nhỏ sau nhà là giải pháp kiến trúc xanh giúp tối [...]
Tậu ngay Sân vườn bên hông nhà đẹp, độc đáo, xu hướng 2026
Sân vườn bên hông nhà ưu diện tích, tạo bộ lọc không khí tự nhiên [...]
Thiết kế Quán cà phê Phong Cách Địa Trung Hải đẹp, tiết kiệm
Thiết kế Quán cà phê Phong Cách Địa Trung Hải mang lại không gian thoáng [...]
TOP 10 Mẫu Hòn Non Bộ Dưới Cầu Thang Đẹp, Thịnh Hành
Hòn non bộ dưới cầu thang là giải pháp tận dụng không gian trống để [...]
Gỗ HDF Là Gì? Đặc Điểm, So Sánh MDF và Báo Giá
Gỗ HDF là dòng gỗ công nghiệp có mật độ nén cao, độ cứng tốt [...]