Nhà cấp 4 2 phòng ngủ là lựa chọn của nhiều gia đình, vợ chồng trẻ nhờ không gian sinh hoạt rộng rãi và chi phí xây dựng phải chăng. Tham khảo kinh nghiệm thiết kế nhà cấp 4 và những mẫu nhà đẹp, hợp xu hướng hiện đại qua bài viết của Nội thất An Tín.
1. Vì sao nhà cấp 4 2 phòng ngủ được ưa chuộng?
Nhà cấp 4 2 phòng ngủ là lựa chọn phổ biến của người Việt ở cả nông thôn lẫn thành phố, bởi những ưu điểm nổi bật như:
- Không gian sinh hoạt vừa đủ và dễ quản lý, phù hợp gia đình nhỏ 2-4 người
- Thường thiết kế không gian mở để tối ưu diện tích, đồng thời mang lại sự tiện lợi và gần gũi trong sinh hoạt
- Thiết kế thoáng, thường có sân vườn tiểu cảnh quanh nhà nên mang lại cảm giác thư giãn
- Thuận tiện bố trí gara, trang trí mặt tiền theo sở thích
- Thời gian thi công nhanh, trung bình 2-4 tháng. Tại An Tín, gói thi công nhà cấp 4 chỉ mất 25 – 45 ngày hoàn thiện
- Tiết kiệm 30-40% chi phí so với các mẫu nhà tầng, phù hợp với các gia đình có ngân sách hạn chế.

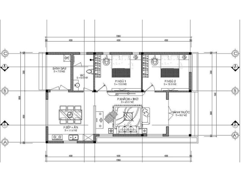
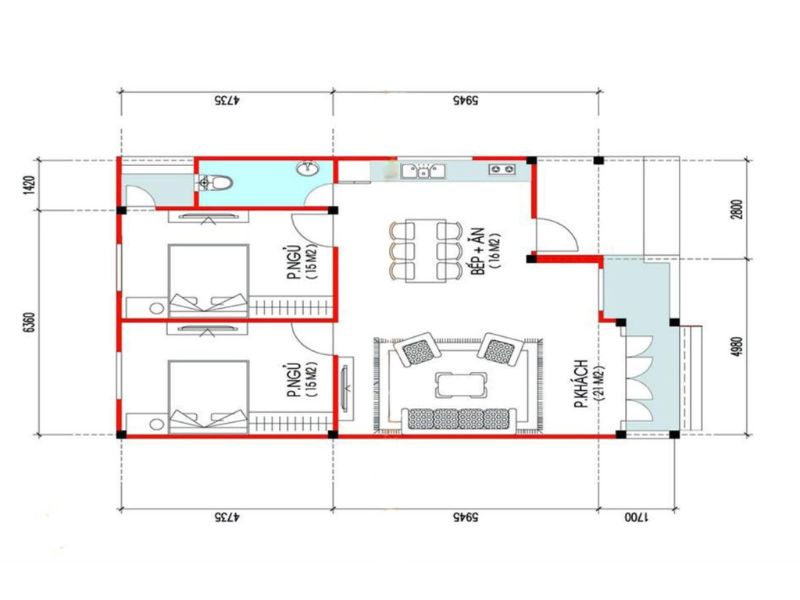
2. Tham khảo bản vẽ thiết kế nhà cấp 4 2 phòng ngủ
Để đáp ứng nhu cầu sinh hoạt của gia đình 2-4 người, nhà cấp 4 2 phòng ngủ gồm các không gian cơ bản như:
- 2 phòng ngủ
- Phòng khách
- Phòng bếp
- Phòng ăn
- Phòng thờ
- 1 – 2 nhà vệ sinh
- Phòng làm việc/phòng sinh hoạt chung (nếu có)
Cách bố trí không gian chi tiết tùy thuộc vào diện tích mặt bằng cũng như nhu cầu của gia chủ. Nếu diện tích nhà hạn chế, bạn có thể kết hợp phòng khách liền phòng bếp và bàn ăn, phòng ngủ có bàn làm việc hay bố trí bàn thờ trong phòng khách.
Mời bạn tham khảo một số bản vẽ nhà cấp 4 2 phòng ngủ:



>>> Bí quyết thiết kế nội thất phòng khách nhà ống đẹp, tiện nghi
3. Tổng hợp mẫu nhà cấp 4 2 phòng ngủ thịnh hành
3.1 Nhà cấp 4 mái thái
Với hệ mái ngói có độ dốc vừa phải, nhà cấp 4 mái thái có khả năng thoát nước mưa và chống nóng tốt. Mẫu nhà này rất phù hợp với khí hậu Việt Nam nên rất được ưa chuộng. Không chỉ vậy, kiểu mái dốc còn tạo cảm giác sang trọng cho căn nhà, dễ kết hợp với nhiều phong cách nội thất từ cổ điển đến hiện đại.



3.2 Nhà cấp 4 2 phòng ngủ mái bằng
Nếu gia chủ yêu thích phong cách tối giản, hiện đại, mẫu nhà cấp 4 mái bằng với đường nét vuông vức sẽ là lựa chọn lý tưởng. Phần mái bằng bê tông cốt thép không chỉ tiết kiệm chi phí hơn mái thái, mà còn dễ dàng nâng cấp, cải tạo thêm khi cần thiết. Gia chủ có thể tận dụng khoảng trống này làm chỗ phơi quần áo, trồng cây…



3.3 Nhà cấp 4 có gác lửng
Để tăng thêm không gian sử dụng, nhiều gia chủ thiết kế thêm gác lửng trong nhà cấp 4. Phần này chiếm khoảng 1/2 – 2/3 diện tích sàn, thường dùng cho các không gian riêng tư như phòng thờ, phòng ngủ.



Hãy để lại lời nhắn
3.4 Nhà cấp 4 chữ L
Như tên gọi, kiểu nhà này gồm có 1 cạnh dài và 1 cạnh ngắn ghép vuông góc tạo thành hình khối chữ L. Nhờ đó, gia chủ dễ dàng tách biệt các không gian sinh hoạt: phòng khách – phòng bếp – phòng ngủ. Đặc biệt, phần khuyết của chữ L có thể tận dụng làm vườn, gara hay sân chơi cho trẻ.



4. Lời khuyên của chuyên gia khi thiết kế nhà cấp 4
Để tránh những sai lầm không đáng khi thiết kế nhà cấp 4 2 phòng ngủ, các chuyên gia gợi ý một số mẹo thiết kế mà bạn có thể tham khảo:
- Lựa chọn mẫu nhà cấp 4 phù hợp: Nếu diện tích đất hạn chế thì bạn nên chọn mẫu nhà mái bằng, nhà cấp 4 có gác lửng để tối ưu không gian. Còn diện tích đất rộng rãi thì có thể tham khảo các mẫu nhà chữ L, nhà mái thái có sân vườn đẹp, sang trọng hơn.
- Bố trí mặt bằng hợp lý: Phòng khách nên đặt gần cửa chính, phòng ngủ tránh hướng nắng gắt, phòng bếp đặt ở góc để tránh ám mùi dầu mỡ khắp nhà…
- Ưu tiên thiết kế không gian mở, bố trí cửa sổ, giếng trời… để không gian thông thoáng, thông gió và thông sáng tốt hơn
- Bên cạnh sở thích, gia chủ nên lựa chọn phong cách nội thất phù hợp với không gian. Ví dụ nhà nhỏ thì nên ưu tiên phong cách tối giản, hiện đại, nhà rộng rãi hơn thì có thể thoải mái lựa chọn phong cách cổ điển, luxury… theo sở thích.
- Dự trù trước chi phí thiết kế, thi công, sản xuất nội thất, đồng thời lựa chọn phương án thiết kế, vật liệu, đội ngũ thực hiện… phù hợp để tránh phát sinh chi phí

5. Trọn gói Thiết kế Thi công nội thất nhà cấp 4 tại An Tín
Trọn gói thiết kế thi công nội thất nhà ở chỉ từ 5.000.000đ/m2
CÔNG THỨC TÍNH CHI PHÍ THIẾT KẾ THI CÔNG NỘI THẤT
Trọn gói thiết kế thi công nội thất nhà ở bao gồm:
- Khảo sát thực tế, tư vấn sơ bộ
- An Tín đưa ra phương án thi công, bản vẽ, dự toán và thông nhất với khách hàng
- Ký hợp đồng thiết kế thi công trọn gói nội thất
Hãy để lại lời nhắn
Nếu bạn muốn thiết kế nhà cấp 4 đẹp, tiện nghi với chi phí tối ưu, hãy liên hệ Nội thất An Tín – một trong những cái tên uy tín hàng đầu trên thị trường. Với hơn 13 năm kinh nghiệm, đội ngũ chuyên môn cao cùng hệ thống xưởng sản xuất quy mô, An Tín giúp bạn:
- Thiết kế không gian sống “may đo” theo nhu cầu, sở thích, cá tính của khách hàng
- Cắt giảm 90% chi phí trung gian, cung cấp sản phẩm giá tốt nhất
- Miễn phí thiết kế, vận chuyển và lắp đặt nội thất tận nơi cho khách hàng
- Bảo hành tận nơi, sửa chữa miễn phí khi có phát sinh.
Việc lựa chọn một đơn vị thiết kế, thi công trọn gói còn giúp khách hàng đảm bảo KHÔNG PHÁT SINH CHI PHÍ ngoài hợp đồng.
Vậy bạn có thể yên tâm giao phó ngôi nhà của mình cho Nội thất An Tín rồi chứ? Chúng tôi sẽ biến hóa mảnh đất trống thành ngôi nhà cấp 4 2 phòng ngủ đẹp, tiện nghi với chi phí tốt nhất!
- HOTLINE: 0909 658 985
- WEBSITE: noithatantin.com
>>> THÔNG TIN HỮU ÍCH KHÁC:
- Kích Thước Giường Tầng Chuẩn Cho Trẻ Em, Người Lớn
- Tiêu chí thiết kế và kích thước quầy bar bếp đẹp, hiện đại


Bài viết mới nhất
Vườn Trên Sân Thượng: điểm nhấn xanh – sạch – đẹp
Vườn trên sân thượng là giải pháp giúp tận dụng diện tích trống để tạo [...]
Thiết Kế Hồ Cá Koi Ngoài Trời hiện đại, Chuẩn Kỹ Thuật 2026
Thiết kế hồ cá koi ngoài trời năm 2026 ưu tiên sự kết hợp giữa [...]
Sân Vườn Kiểu Nhật: 4 lối thiết kế và tiêu chuẩn thi công
Sân vườn kiểu Nhật là không gian Zen tối giản, tập trung vào 4 loại [...]
8 Mẫu thiết kế sân vườn nhỏ sau nhà đẹp như resort tại gia 2026
Thiết kế sân vườn nhỏ sau nhà là giải pháp kiến trúc xanh giúp tối [...]
Tậu ngay Sân vườn bên hông nhà đẹp, độc đáo, xu hướng 2026
Sân vườn bên hông nhà ưu diện tích, tạo bộ lọc không khí tự nhiên [...]
Thiết kế Quán cà phê Phong Cách Địa Trung Hải đẹp, tiết kiệm
Thiết kế Quán cà phê Phong Cách Địa Trung Hải mang lại không gian thoáng [...]
TOP 10 Mẫu Hòn Non Bộ Dưới Cầu Thang Đẹp, Thịnh Hành
Hòn non bộ dưới cầu thang là giải pháp tận dụng không gian trống để [...]
Gỗ HDF Là Gì? Đặc Điểm, So Sánh MDF và Báo Giá
Gỗ HDF là dòng gỗ công nghiệp có mật độ nén cao, độ cứng tốt [...]